WORKS /
OFFICE /
CONTACT /
HOME /
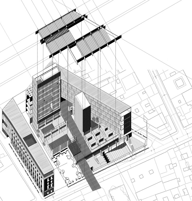
NUEVA SEDE DEL COAM Y EQUIPAMIENTOS MUNICIPALES
prev
next